ID CP2564821

Vanzare | Cladire Multifunctionala | Strada Viitorului | Eminescu

ID CP2564821

1,950,000 €

Proprietate specială de vânzare
Eminescu, Bucuresti
856.15 mp

Cladire Mixta de Vanzare – Viitorului, Bucuresti

Potrivita pentru:

Clinica medicala

Sediu firma / birouri

Hotel Boutique / Aparthotel

Informatii generale:

Regim inaltime: S + P + 2E + M (5 niveluri)

Suprafata utila: 856 mp

Suprafata construita: 1027 mp

Expertizata MLPAT

Zona ultracentrala in plina dezvoltare

Accesibilitate excelenta:

Mega Image vis-a-vis

Transport public: STB linia 16

metrou Piata Obor (10 minute)

Facilitati si Configurare:

Etaj 1, Etaj 2 si Mansarda:

Fiecare nivel dispune de spatii compartimentate, fiecare cu baie proprie, birouri, spatii depozitare si holuri

Posibilitate utilizare individuala sau integrala

Pot fi transformate in:

3 apartamente cu acces la sala de sport, sauna, vestiare, dusuri si sala evenimente

sau 6 apartamente de 2 camere cu aceleasi facilitati comune

Parter:

3 spatii comerciale, cu acces din strada sau din curtea interioara

2 grupuri sanitare (inclusiv pentru persoane cu dizabilitati)

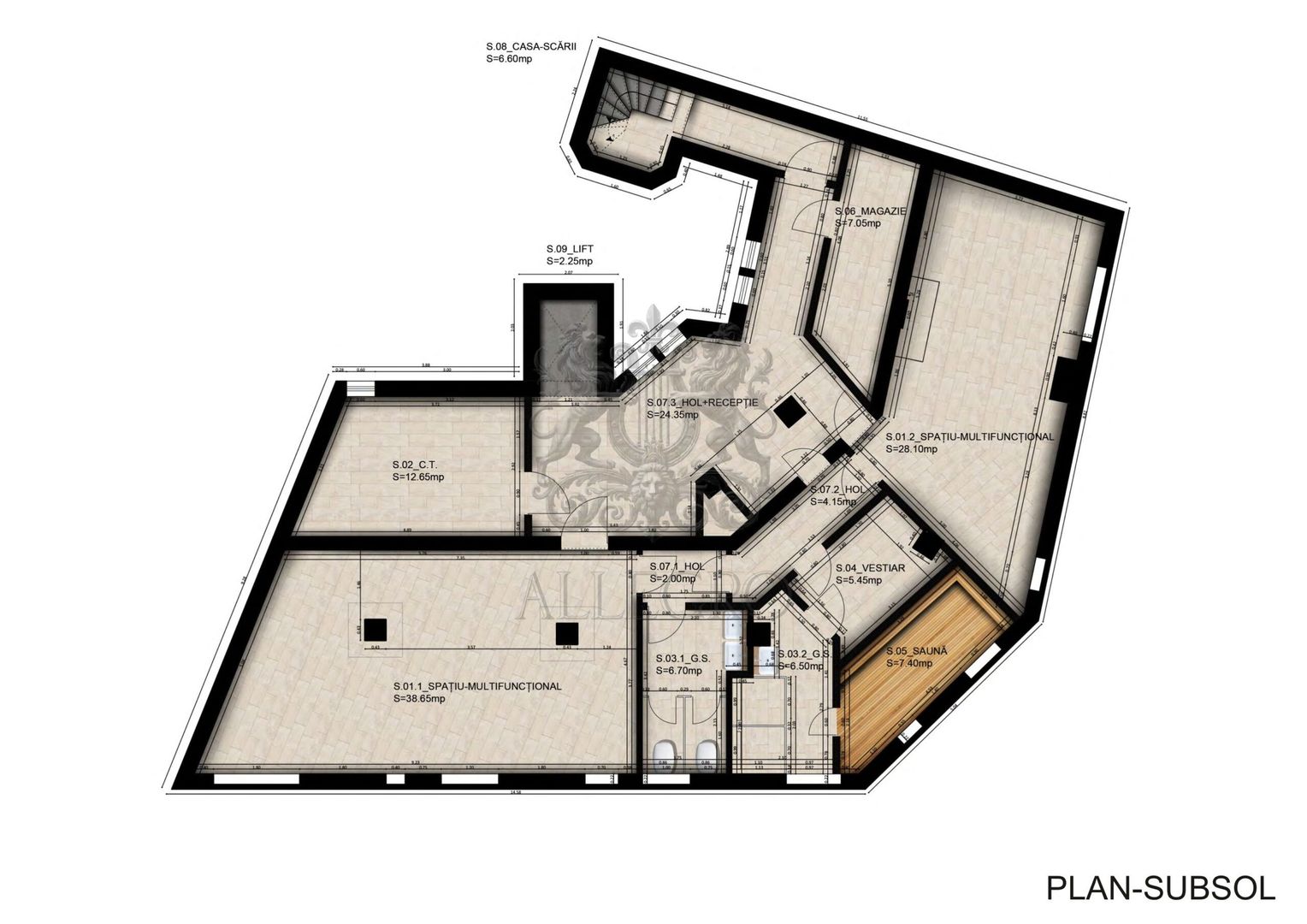
Subsol:

2 spatii multifunctionale

Acces comun la vestiare, bai, dusuri si sauna

Parcare proprie:

Curte interioara cu acces auto direct din Strada Viitorului, cu o capacitate de pana la 6 locuri

Dotari Tehnice:

Structura si instalatii:

Structura complet din beton armat

Instalatii complet noi, modernizate

Contorizare individuala, cu citire din spatiile comune

Incalzire si climatizare:

Incalzire cu centrala Viessmann (2 unitati in cascada, sistem automatizat, control de la distanta)

Temperatura ambientala controlabila individual

Aer conditionat tip split cu inverter in fiecare camera

Retea si siguranta:

Iluminat cu senzori de miscare si prize la fiecare 2 metri

Retea IT, wireless, telefonie si cablu TV

Sistem detectie incendiu + butoane panica

Sistem de alarma modular, configurabil pentru fiecare spatiu

Circulatii si eficienta:

Scara secundara interioara

Lift panoramic exterior, sistem hidraulic, avand acces la toate etajele

Citește mai mult

  • Tip imobil
    Clădire mixtă
  • Număr băi
    17
  • Număr etaje clădire
    2
  • Imobil consolidat
    Da
  • Are mansardă
    Da
  • Vitrină (m)
    40.0 m
  • Număr locuri parcare
    6
  • Suprafață construită
    1,027.8 mp
  • Suprafață utilă
    856.15 mp
  • Compartimentare spațiu
    Compartimentat
  • Disponibilitate
    Imediat

Facilități

Acces pentru persoane cu dizabilități
Aer condiționat
Apă
Apometre
Boxă la subsol
Calorifere
Canalizare
CATV
Centrală imobil
Centrală proprie
Contor căldură
Contor electric
Contor gaz
Curent
Curent trifazic (380V)
Curte
Curte comună
Ferestre care se deschid
Ferestre lemn
Gaz
Iluminat stradal
Interfon
Internet
Izolație exterioară
Lift
Magazie
Parcare biciclete
Parcare deschisă
Pivniță
Saună
Senzor de fum
Sistem de alarmă
Spa
Spălătorie
Spații agrement
Străzi asfaltate
Străzi betonate
Supraveghere video
Telefon
Ușă intrare metal
Uscătorie
Uși interior lemn
Wireless
Allegro Real Estate
Admin

0730386415


Solicită chiar acum o vizionare
Nume
Telefon
Email
Sună acum Solicită vizionare
Necesare:

Site-ul nu poate funcționa corect fără aceste cookie-uri. Vezi cookie-urile

Statistică:

Strângem statistici anonime despre voi, vizitatorii unici, pentru a vă îmbunătăți experiența dumneavoastră. Vezi cookie-urile

Marketing:

Pentru a ne promova mai eficient serviciile noastre, folosim cookies pentru a vă identifica și a vă oferi proprietăți și servicii personalizate. Vezi cookie-urile

Acest site folosește cookies, află detalii. Alege ce tipuri de cookies dorești să permitem: